Fri, Feb 20, 2026

Business

No item found!

No item found!

US Commission Of Fine Arts Greenlights Trump White House Additions Despite Critics ‘Overwhelmingly In Opposition’

US Commission Of Fine Arts Greenlights Trump White House Additions Despite Critics ‘Overwhelmingly In Opposition’

The United States Commission of Fine Arts voted Thursday to approve the final designs of the White House East Wing Modernization project as the Trump administration aims to kick off aboveground construction in April.

A final vote was not expected until the Commission of Fine Arts’s (CFA) next meeting in March, but Trump-appointed CFA Chairman Rodney Mims Cook Jr. made the motion to accelerate the federal design review panel’s approval process.

“Our sitting president has actually designed a very beautiful structure,” Cook commented before calling for a vote. “The United States just should not be entertaining the world in tents. It is really outrageous that we do that, and no president has really stepped up to the plate to require that be corrected, until President Trump.”

The unanimous vote passed despite over 2,000 public comments from across all demographics “overwhelmingly in opposition.”

“In two decades of casework here, I’ve never seen as much public engagement on this. We’ve literally gotten, in the past week or so, more than 2,000 various messages,” CFA Secretary Thomas Luebke reflected. “The vast, vast majority is negative, in general.”

“Some comments were that they were concerned about the ‘illegal’ demolition without permits or oversight, inappropriate scale that will dwarf the White House, the violation of historic preservation principles, a lack of transparency in funding and contracting, and fundamental miscarriage of democratic principles,” he summarized before reading a selection of messages “bracketing” the range of input formally received by CFA ahead of the meeting.

“The ballroom seems to shout power,” one public comment highlighted.

Since the project came before them, however, the Trump-appointed CFA commissioners never expressed any opposition to the president’s vision, but suggested a few design refinements to help maintain the overall architectural character of the White House campus.

“This is sort of, like, the greatest country in the world, the greatest house in the world and we want it to be sort of the greatest ballroom in the world,” Commissioner Chamberlain Harris, Trump’s 26-year-old deputy director of Oval Office operations, said.

Project architect Shalom Baranes, whose portfolio of work includes renovating the Pentagon after the 9/11 attacks, led the online presentation to the CFA detailing the latest revisions to the state ballroom and associated landscaping plans. The updated designs sought to address the Commission’s previous comments “that any addition to the [White House] complex should be beautiful” and support “a stylistic treatment of the addition to be compatible with the Federal-era Neoclassical style of the Residence.”

Shalom Baranes Associates rendering, White House Ballroom view looking Northeast [Screenshot/Public/CFA.gov]

“We generally try to rationalize things and make them simpler in terms of their reading and I think we’ve been able to accomplish that here,” Baranes said during his presentation.
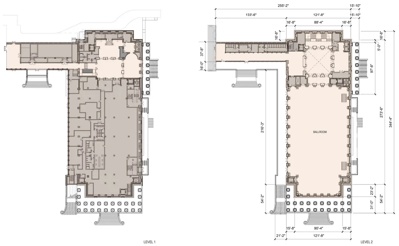
Shalom Baranes Associates rendering, White House East Wing modernization floor plans: levels 1 & 2 [Screenshot/Public/CFA.gov]

Shalom Baranes Associates rendering, White House East Wing modernization floor plans: levels 1 & 2 [Screenshot/Public/CFA.gov]

The submitted design reflected numerous changes to the initial January concepts while retaining a similar two-story footprint of roughly 89,000 square feet, including the 22,000-square-foot ballroom which soars 40 feet high. Whereas the east and south porticoes were planned to each be crowned with a triangular pediment, only the east one remains, exceeding the White House roof by four feet.
Shalom Baranes Associates rendering, White House Ballroom south elevations (top: January 2026 submission; bottom: February 2026 submission) [Screenshots/Public/CFA.gov]

Shalom Baranes Associates renderings, White House Ballroom south elevations (top: January 2026 submission; bottom: February 2026 submission) [Screenshots/Public/CFA.gov]

The plans show nine arched windows along the ballroom’s western level, up from eight. A redesign of the first-floor windows features doorways leading to a larger East Wing garden which replaces the demolished Jacqueline Kennedy Garden. The new design adopts and relocates trees and Mount Vernon pavers from the old garden, as well as its fountain.

The new East Colonnade opens to the planned garden via a grand staircase. Connecting the garden to the new East Wing’s first floor are stone-paved paths, adjacent to a circular brick section.

The South Lawn’s primary circular pathway will lose its symmetry to accommodate the size of the new East Wing.

Shalom Baranes Associates rendering, White House Ballroom enlarged East and West elevations [Screenshot/Public/CFA.gov]

Shalom Baranes Associates rendering, White House Ballroom enlarged East and West elevations [Screenshot/Public/CFA.gov]

Shalom Baranes Associates rendering, White House illustrative site plan [Screenshot/Public/CFA.gov]

Shalom Baranes Associates rendering, White House illustrative site plan [Screenshot/Public/CFA.gov]

Shalom Baranes Associates rendering, White House aerial site photo (left: January 2026 submission; right: February 2026 submission) [Screenshots/Public/CFA.gov]

Shalom Baranes Associates renderings, White House aerial site photo (left: January 2026 submission; right: February 2026 submission) [Screenshots/Public/CFA.gov]

Established in 1910, the CFA is an independent federal agency charged with “giving expert advice to the President, the Congress and the federal and District of Columbia governments on matters of design and aesthetics, as they affect the federal interest and preserve the dignity of the nation’s capital.” Its seven members — supported by 12 professional staff — are traditionally selected in part based on their expertise in the arts to serve four-year terms without compensation. In June 2019, CFA completed a review of a new White House tennis pavilion project led by first lady Melania Trump.

In 1947, the CFA notably took a position against the now-iconic second-floor balcony proposed for the south-facing side of the White House by then-President Harry Truman, citing concerns the balcony would clash with the Executive Residence’s Classic Greek character. CFA merely advised the president to “abandon the project.” In June 1950, Truman replaced four commissioners who stayed on after their first terms after reports emerged of members’ opposition once the project advanced, which the president viewed as an “undercover attack,” The New York Times reported.

The administration of former President Joe Biden pushed four of Trump’s appointees out of their positions, citing an expectation for a “diversity of background and experience.”

Trump, in turn, fired all six CFA commissioners appointed by Biden in October 2025, The Washington Post reported.

“On behalf of President Donald J. Trump, I am writing to inform you that your position as a member of the Commission of Fine Arts is terminated, effective immediately,” a letter sent to the commissioners at the time reportedly read.

Trump left the body empty until shortly after George W. Bush-appointed Judge Richard Leon ordered Dec. 17 for the White House to initiate “the consultation processes” by the end of December. The order followed a Dec. 12 National Trust for Historic Preservation lawsuit alleging the Trump administration skirted federal preservation law and shut out necessary scrutiny by those agencies. Trump then began naming his second-term appointees to the body in January 2026.

Notably, Trump’s appointees include two architects who each completed a term with CFA after being selected in November 2019: original White House ballroom designer James McCreary II, and Cook, president and founder of the National Monuments Foundation. (RELATED: ‘History Will Be Made’: Trump’s Unveiled Ballroom Plans Reveal Bigger, Taller White House Addition)

Democratic Massachusetts Sen. Elizabeth Warren also authored a letter Wednesday to the National Park Service probing “corruption” concerns in connection with how the agency handled donations for the $400 million privately funded project.

The East Wing modernization project’s design will undergo a separate final vote by the National Capital Planning Commission on Mar. 5, after having initially been presented for consideration on Jan. 8.

All content created by the Daily Caller News Foundation, an independent and nonpartisan newswire service, is available without charge to any legitimate news publisher that can provide a large audience. All republished articles must include our logo, our reporter’s byline and their DCNF affiliation. For any questions about our guidelines or partnering with us, please contact This email address is being protected from spambots. You need JavaScript enabled to view it..

Related Articles

Image